ページトップ

高槻市塚原1丁目

トップ > 物件一覧 > 高槻市塚原1丁目
価格 2,780万円
住所 高槻市塚原1丁目
交通 JR京都線摂津富田駅バス16分日赤病院停徒歩2分
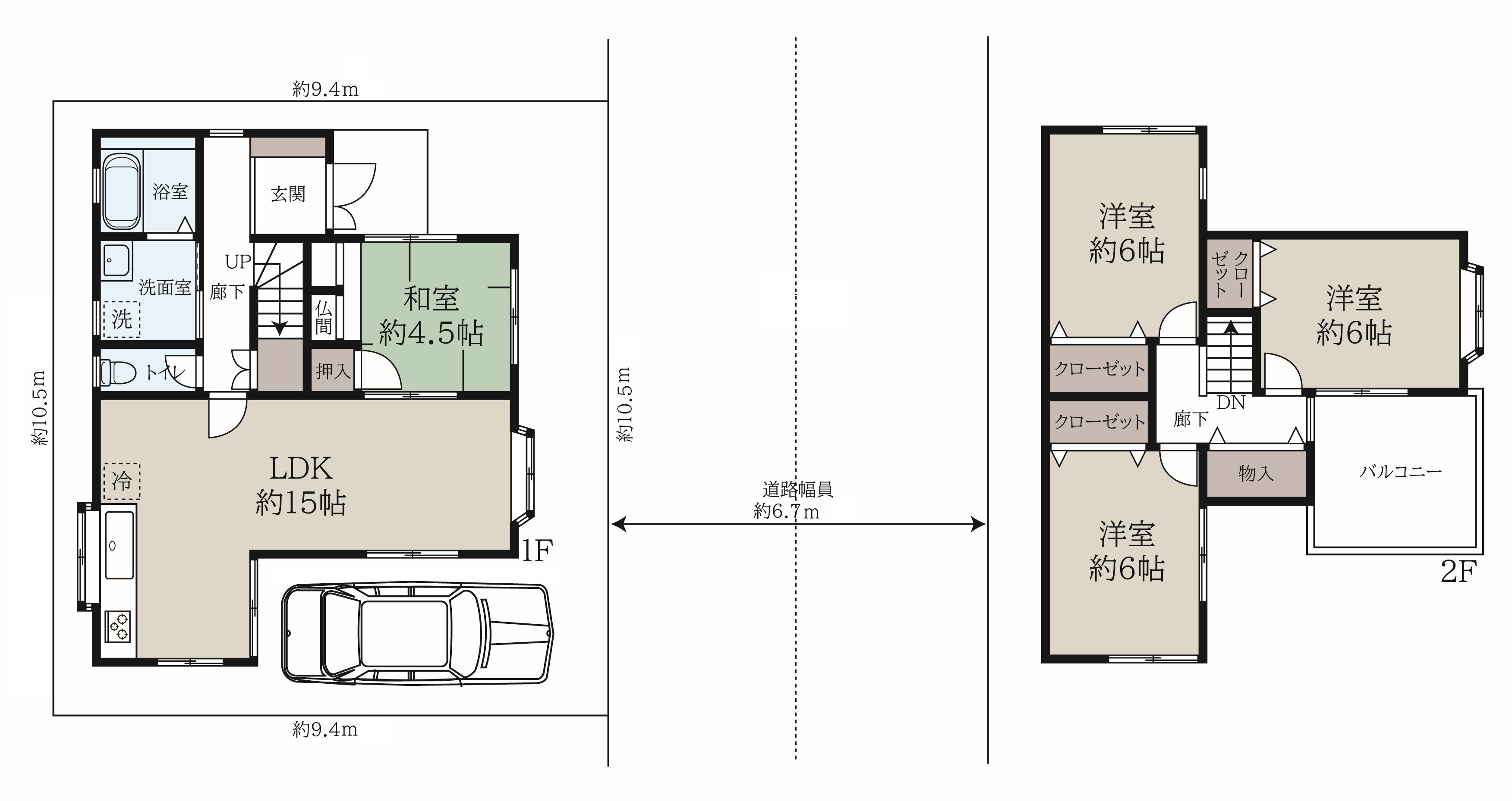
建物面積 1階52.17㎡・2階40.57㎡
間取り 4LDK
築年月 平成13年11月
階数/階建 2階建
向き 東向き
現況 空家
駐車場 あり
建物構造 木造
土地面積 100.01㎡
地目 宅地
接道状況 東側公道幅員約6.7m
建ぺい率 60%
容積率 200%
用途地域 第1種中高層住居専用地域
都市計画 市街化区域
土地権利 所有権
引渡時期 相談
取引態様 仲介
備考 ●マルヤスまで徒歩3分(240m)●高槻赤十字病院まで徒歩4分(300m)●ファミリーマート徒歩3分(240m)

おすすめポイント

●レオタウン分譲地内 ●土地面積約30.25坪、建物面積約28.05坪 ●閑静な住宅地内 ●前面道路幅員約6.7m ●ワンボックス車駐車可能 ●LDK約15帖 ●広々屋根付バルコニー ●和室に床暖房あり

物件情報

アクセス

株式会社 高槻天神不動産

〒569-1123 大阪府高槻市芥川町1-11-9-401Tel. 072-682-1000 / Fax. 072-682-1700

物件やサービスに関する

お問い合わせ

お気軽にお電話でのご連絡やメールをご利用ください。

お電話でのお問い合わせ

メールでのお問い合わせ